Map

Ново строителство в Свети Влас – качество, комфорт и отлична локация

(0)

Свети Влас, Бургаска 2,304 views Oct 28, 2025

€87,500 Selling

Overview
Category Апартамент
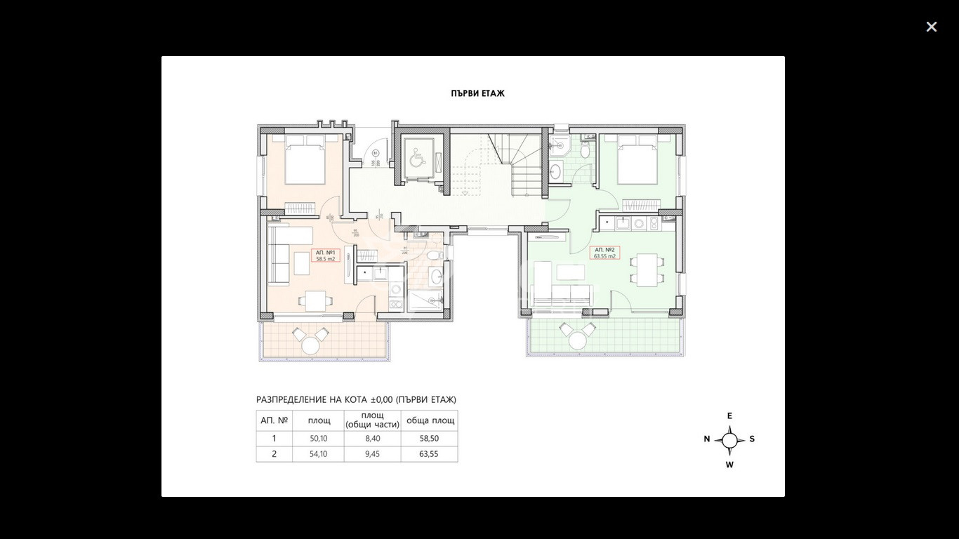
Square 58 m²
Number of bedrooms 1
Number of bathrooms 1
Number of floors 4
Price €87,500
Реф. No: ES-FairV
Етаж 1
Description

Представяме ви новострояща се бутикова жилищна сграда Феър Вю, разположена в спокоен и предпочитан район на гр. Свети Влас. Проектът съчетава съвременен дизайн, високо качество на изпълнение и отлична среда за живот.

Свети Влас е известен със своя уникален микроклимат, резултат от близостта между морето и склоновете на Стара планина. Тази комбинация създава изключително чист въздух и благоприятни климатични условия, което прави района сред най-желаните по българското Черноморие.

Характеристики на сградата:
    •    Четири етажа, с по три апартамента на всеки етаж – ограничен брой жилища, гарантиращи спокойствие и уют
    •    Общ брой апартаменти: 10
    •    Срок за завършване: март 2027 г.
    •    Асансьор – модерен и безшумен
    •    Паркоместа – предвидени за удобство на живущите
    •    Фасада и общи части – изпълнени с висококачествени материали, създаващи усещане за лукс и стил
    •    Енергийна ефективност – съвременна изолация и дограма от висок клас

Предимства на локацията:
    •    Разположена в спокоен и добре развит район на Свети Влас
    •    Близост до морето и пешеходен достъп до плажа
    •    В близост до магазини, ресторанти и удобства за целогодишно обитаване
    •    Отлична транспортна достъпност
    •    Район с висок инвестиционен потенциал

Този проект предлага комфортен начин на живот в модерна сграда с ограничен брой жилища, осигуряваща интимна и престижна атмосфера. Подходящ е както за постоянно живеене, така и за ваканционен имот или инвестиция.


Features

Паркинг

Тераса

Градина

Допускат се домашни любимци

Асансьор


Distance key between facilities

Болница - 1км

Супермаркет - 500м

Училище - 500м

Аптека - 1км

Летище - 30км

Автобусна спирка - 100м

Плаж - 500m

Банка - 1км



Location

Свети Влас



Share this property:

Write a review

Please log in to write review!





Related properties